STOF Logo Crop
PONT
PONT

한국 커피 로스터리 브랜드 pont와 디자인 스튜디오 stof은 서울 용산의 오래된 철도청 관사를 리노베이션하여, 두 길을 잇는 공간적 맥락을 브랜드 가치인 ‘연결’의 개념으로 재해석한 쇼룸을 만들었다. 바와 좌석, 벽체와 바닥이 길처럼 흐르며, 커피가 사람과 사람을 이어주는 경험을 제공한다.

pont and spatial design studio stof renovated a former railway residence in Yongsan, transforming its linear structure—linking two streets—into a showroom that embodies the brand’s philosophy of connection. Through directional spatial elements and open interaction between barista and guest, the space communicates how coffee bridges people and experiences.

현재 그 어느 때보다 부흥기를 겪고 있는 한국의 커피산업은 소규모 로스터리들의 열정으로부터 시작했다고 해도 과언이 아니다. 이 나라의 젊은 로스터들은 계속해서 꾸준히 각자마다의 가치를 내세우며 이 산업의 발전을 리드하고 있다.

Korea’s coffee industry is experiencing an unprecedented renaissance, and it would not be an overstatement to say that it began with the passion of small independent roasteries. Young Korean roasters continue to lead the growth of this scene by pursuing their own values and pushing the craft forward.

PONT
PONT

이 중 하나인 한국의 커피 로스터리 브랜드 pont 가 공간디자인 스튜디오 stof와 함께 오래된 목조주택을 개조하여 서울에 쇼룸을 열었다. pont가 위치한 서울 용산은 높은 빌딩들이 빽빽히 있는 도시적인 이미지와, 마치 시간이 멈춘 듯 한 오래되고 낡은 동네가 대조적으로 공존한다.

Among them, the coffee roastery brand pont has collaborated with spatial design studio stof to transform an old wooden house into a new showroom in Seoul. The area of Yongsan, where pont is located, presents a striking contrast—dense clusters of high-rise buildings coexist with a timeworn neighborhood that feels as though time has stood still.

PONT
PONT
PONT
1  of  3

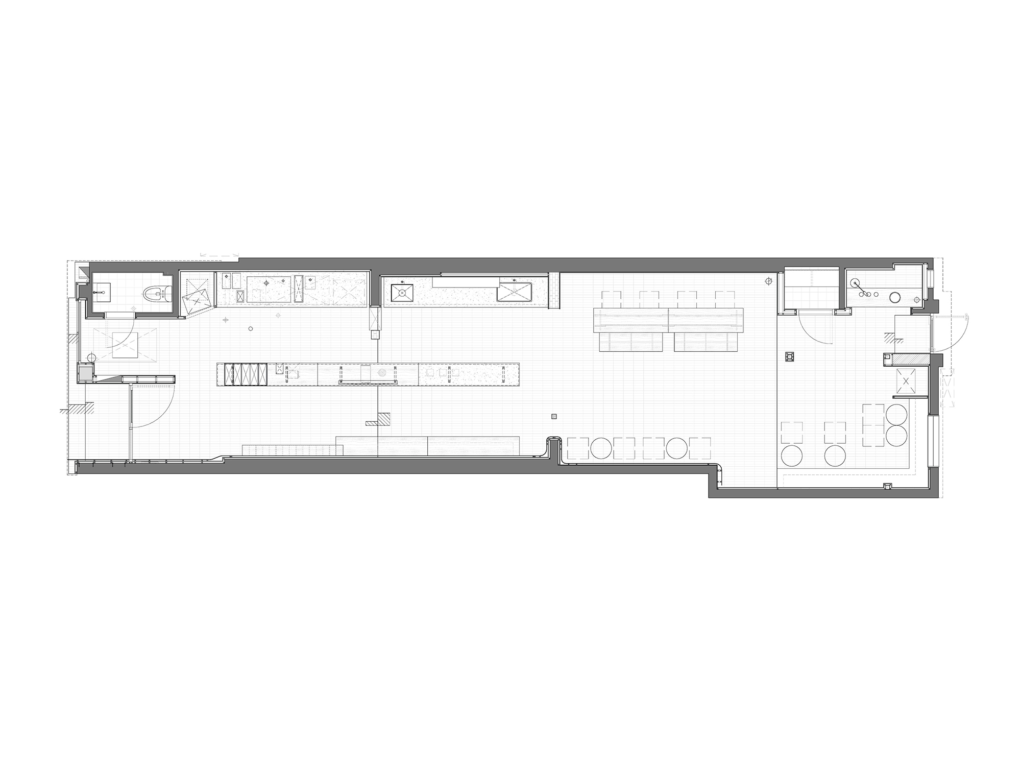
pont의 공간은 원래 이 오래된 동네에서 수평으로 나있는 두 길을 이어주던 기다란 모양의 옛 철도청 관사였다. 각 길에 맞닿는 면에는 각각 문이 나있어서 마치 동네의 오래된 지름길 같은 모양을 띤다.

The space originally functioned as an elongated residential building for the former National Railroad staff, connecting two parallel streets in the neighborhood. Doors on both ends open directly to each street, giving the building the character of a hidden shortcut cherished by locals.

PONT
PONT
PONT
PONT
1  of  4
PONT

stof 는 생산자와 소비자를 연결해주는 'pont' (다리 라는 뜻의 불어)의 브랜드가치가 두 길을 잇는 이 공간의 구조적 맥락과 상통하다고 생각하였다. 그래서 그들은 '연결되는 길'의 이미지를 시각적으로 강조하기 위해, 이 지역에서 볼 수 있는 길의 이미지를 수집하고, 공간 내에 동선을 유도하는 장치로서 벽,천장 등에 의도적으로 배치하였다.

Stof. recognized a meaningful alignment between pont’s brand value—“pont” meaning “bridge” in French, symbolizing the connection between producers and consumers—and the physical context of a structure that links two streets. To visually emphasize this idea of a “connecting passage,” images and references from the surrounding neighborhood paths were collected and intentionally incorporated throughout the interior as elements guiding movement along walls and ceilings.

마치 다리의 모양과 같이 입구에서부터 길게 종방향으로 놓여진 목재 바테이블은 바리스타의 작업공간인 동시에 바리스타와 고객 간의 소통을 위한 곳이다. 때문에 시각적으로 최대한 간섭 받지 않도록 디자인 되었으며 개방된 느낌을 주도록 계획되었고, 맞은편에는 고객을 위한 벤치가 배치되어 있다.

A long timber bar table, laid out lengthwise like the deck of a bridge, serves both as a working ground for baristas and as an open medium for communication with guests. To maintain visual permeability and a welcoming atmosphere, the bar was designed to avoid unnecessary enclosure, and a series of benches opposite the bar provides seating for customers.

PONT
PONT
PONT
PONT
PONT
PONT
PONT
PONT
PONT
PONT
PONT
PONT
PONT
PONT
1 / 6

벽돌, 금속, 목재 등 공간 내 길목 중간중간에 세워진 각기 다른 소재의 기둥들과 천장의 마감재는 이전부터 실제로 쓰여졌던 구조들로, 이 공간이 거쳐온 시간의 흐름을 보여준다. 외부에서 내부까지 이어지는 한 겹의 벽체는 기존의 벽을 곡면으로 부드럽게 감싸며 동선을 유도하고, 바닥의 terracotta는 이 공간이 단순히 한 매장의 내부가 아닌 다른 길로 이어지는 통로로서의 이미지를 제공한다.

Existing architectural components—including brick, metal, and wooden pillars placed intermittently along the circulation, as well as the preserved ceiling finishes—reveal the layers of time this space has endured. A single continuous wall surface extends from the exterior to the interior, reshaped into gentle curves to suggest directional flow, while terracotta flooring reinforces the impression of the space as a transitional passage rather than a conventional retail interior.

PONT
PONT
PONT
PONT
PONT
PONT
PONT
PONT
PONT
PONT
PONT
PONT
PONT
1 / 6