STOF Logo Crop
flat point, Daejeon
flat point, Daejeon

플랫 포인트는 간결한 디자인을 통해 일상에 특별한 감각을 불어넣는 리빙 브랜드다. ‘심플함’을 넘어 한층 더 정제된 ‘플랫함’을 지향하며, 한 끗의 디테일이 감성을 완성하는 디자인 철학을 담고 있다. 성수 쇼룸을 시작으로 전국으로 오프라인 매장을 확장해온 플랫 포인트는, 이번 대전 쇼룸에서 브랜드의 새로운 면모를 드러내고자 한다.

Flat Point is a lifestyle brand that brings refined sensibility into everyday life through its concise design language. Beyond simple “minimalism,” the brand pursues a more cultivated notion of “flatness”—a design philosophy in which the smallest detail completes an emotional experience. Starting with its flagship showroom in Seongsu and expanding across Korea, Flat Point now reveals a new expression of its identity at the Daejeon showroom.

flat point, Daejeon
flat point, Daejeon
flat point, Daejeon
1  of  3

대전 둔산동은 계획적으로 조성된 도시로, 격자형 도로망과 명확한 구획, 현대식 건물들이 빚어내는 ‘효율’과 ‘질서’의 풍경이 특징적이다. 스토프(stof)는 이러한 맥락 속에서, 질서정연한 도시의 풍경과 반대로 감각을 자극하는 공간이 필요하다고 느꼈다. 기능과 효율을 넘어 감각과 관계가 살아나는 장소로서 쇼룸을 구상했으며, 반복되는 도시적 입면과는 다른 따뜻한 소재를 통해 시각적/촉각적으로 환기되는 경험을 제안하고자 했다.

Dunsan-dong in Daejeon is a meticulously planned district, marked by its grid-like streets, distinct zoning, and modernist architecture—a cityscape shaped by efficiency and order. Within this context, stof, the design studio behind the showroom, envisioned a contrasting space: one that stimulates the senses, where feeling and connection take precedence over function and efficiency. The concept was to break away from the repetitive rhythm of urban façades and instead offer a tactile and visual refresh through the warmth of natural materials.

flat point, Daejeon
flat point, Daejeon
flat point, Daejeon
flat point, Daejeon
flat point, Daejeon
1  of  5

파사드는 질감이 살아있는 백색의 스페셜 페인트로 마감하여 무게감 있는 진입부를 형성한다. 군더더기 없는 미니멀한 파사드는 오히려 내부의 풍경을 강조하며, 그 안에서 전개되는 플랫 포인트의 가구 세계로 시선을 이끌어낸다. 쇼룸 중앙에 배치된 거대한 박스 형태의 구조체는 도시적 배경과 대비되는 목재 질감을 드러내며 공간 전체에 온기를 불어넣는다. 이는 이전 쇼룸들과는 사뭇 다른 감각을 전달한다.

The facade is finished in a textured white special coating, establishing a presence that is at once weighty and minimal. Its restrained geometry draws the gaze inward, emphasizing the interior landscape and inviting visitors into Flat Point’s world of furniture. At the heart of the showroom, a monumental wooden volume radiates warmth, standing in stark contrast to the surrounding urban backdrop. This intervention produces a sensory experience distinct from Flat Point’s earlier showrooms.

flat point, Daejeon
flat point, Daejeon
flat point, Daejeon
flat point, Daejeon
flat point, Daejeon
flat point, Daejeon
flat point, Daejeon
flat point, Daejeon
1 / 4

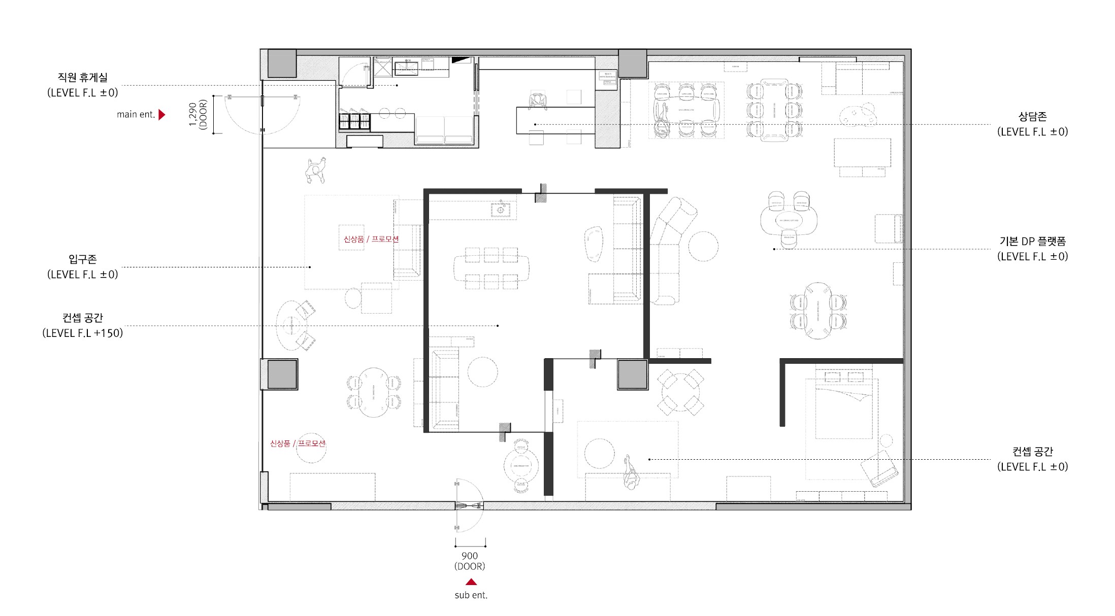
내부 공간은 ‘격자형 도시 조직’에서 파생된 축선을 바탕으로 구성된다. 면과 선이 교차하며 영역을 나누고 연결하는 과정에서 독특한 조형적 맥락이 형성된다. 이러한 교차는 단순한 동선 구획을 넘어, 서로 다른 장면을 유기적으로 이어주며 방문객이 자연스럽게 공간을 탐험하도록 이끈다. 층위가 겹치듯 펼쳐지는 장면은 브랜드만의 리듬과 질서를 만들어내고, 반복적인 도시 풍경 속에서 새로운 몰입의 경험을 가능하게 한다.

Inside, the layout takes inspiration from the axial order of the grid city. Lines and planes intersect to divide and connect zones, creating a sculptural language unique to the space. These intersections are not simply pathways but organic connections, linking scenes in a way that encourages intuitive exploration. As spaces unfold in layers, a rhythm and order emerge that reflect the brand’s identity, offering an immersive journey that breaks away from the monotony of the city outside.

바닥과 천장의 높낮이 차이를 활용해 각 공간은 서로 다른 깊이감과 분위기를 띠게 된다. 이는 단순히 영역을 분리하는 기능을 넘어, 고객이 제품을 다양한 시선에서 인지하고 경험하도록 돕는다. 시선의 흐름은 지역에서 공간으로, 공간에서 제품으로 이어지며, 그 과정에서 중첩되는 장면들이 특별한 체험을 완성시킨다.

Shifts in floor and ceiling height lend each zone its own depth and atmosphere. This variation not only differentiates spaces but also allows visitors to experience the furniture from multiple perspectives. The flow of vision carries seamlessly—from the street, into the interior, and toward the products—producing overlapping scenes that culminate in a memorable encounter.

flat point, Daejeon
flat point, Daejeon

플랫 포인트의 쇼룸은 단순히 가구를 전시하는 공간을 넘어, 브랜드와 고객이 감각적으로 교감하는 장소로 자리한다. 매장을 들어서서 나서는 순간까지 이어지는 흐름 속에서, 의도된 동선과 따뜻한 질감이 방문객에게 편안하면서도 특별한 경험으로 남길 바란다.

Ultimately, Flat Point’s showroom is more than just a venue for displaying furniture. It is a space where the brand and its visitors engage in a sensory dialogue. From the first step inside to the moment of departure, the carefully orchestrated flow and warmth of materials aim to leave guests with a sense of comfort—yet one distinguished by an extraordinary impression.

flat point, Daejeon
flat point, Daejeon
flat point, Daejeon
flat point, Daejeon
flat point, Daejeon
flat point, Daejeon
flat point, Daejeon
flat point, Daejeon
flat point, Daejeon
flat point, Daejeon
flat point, Daejeon
flat point, Daejeon
flat point, Daejeon
flat point, Daejeon
1 / 7